Silver

3

4 Bed Townhouse with En Suite at Kirawa Road

KSh 38,500,000

Kirawa road, Kitisuru, Westlands

Bedrooms:
4
Bathrooms:
5
Size:
3.300 ft²
Report

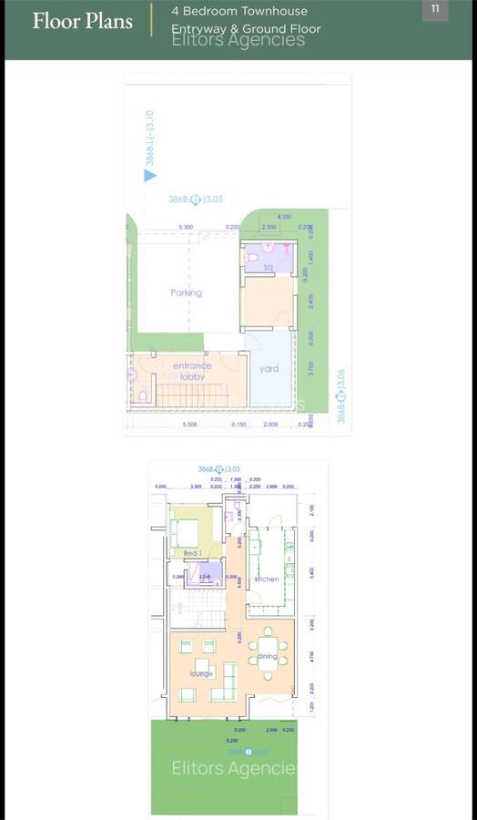
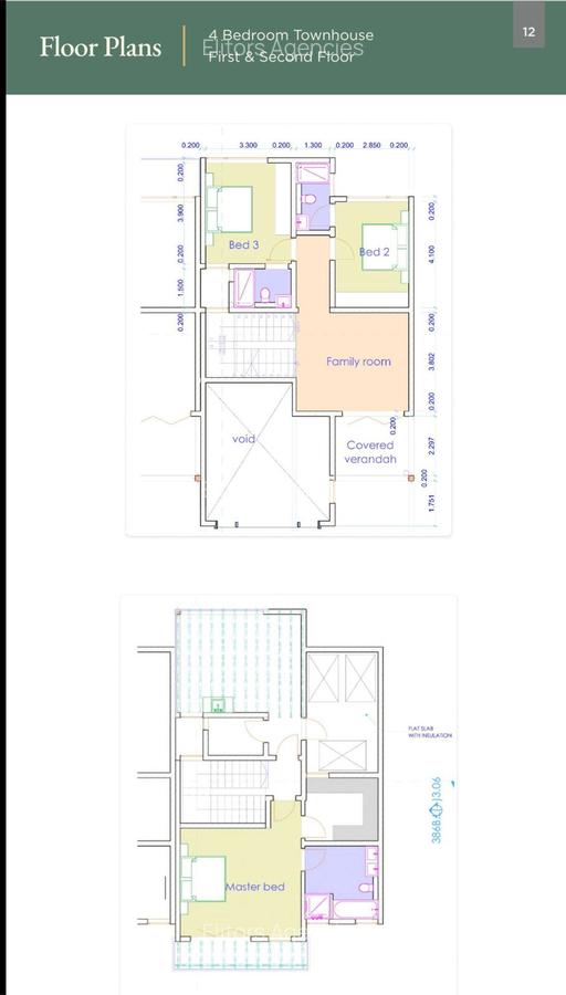
House Description

Description Discover an urban sanctuary where striking architecture meets inspired interiors at Kitisuru’s most coveted address. Nestled off Kirawa Road is this developing community by the name Kirawa village, this gated community of just 9 VILLAS blends modern design with serene natural immersion—mature trees frame protected riparian zones, creating unparalleled tranquility, purity, and privacy mere 15 minutes from Westlands’ vibrant heart. Residents enjoy privileged access to a private club featuring a Swimming pool, and riverfront bar, where leisure unfolds against a backdrop of lush, conserved landscapes. Phase one’s success is already realized, with homes occupied and thriving. Amenities in this Amazing Homes; - Swimming pool - Backup Generator - 2 Garage parking space - 3 storey houses - Gated Community - Private garden - 10,000 liters underground water tank Some features of these exquisite townhouses; - Elegant hardwood mahogany doors fitted with imported ironmongery. - Designer Kitchen complete with 4 integrated appliances (Hood, cooker, Oven and Microwave) - Lavish quartz kitchen countertops for a sleek, durable finish. - 6 meter/20 foot high double volume living room. - Exterior timber cladding that echoes the verdant landscape. Now, the final phase presents a vanishing opportunity: 4-bedroom villas (with DSQ) 3300 SQ FT priced from KES 38.5 million (2 remaining) Expansive 5-bedroom Villas (plus DSQ) 4000 SQ FT, priced from KES 48 million ( 2 remaining) PAYMENT PLAN; 20% DEPOSIT THEN BALANCE DURING THE CONSTRUCTION PERIOD. Construction already commenced, with completion slated before Q2 2026. Secure one of these rare sanctuaries—where Kitisuru’s whispering greenery meets uncompromising elegance. To book a site visit Please call us or text us on
07622**** View Number
/
07139**** View Number
Read more Read less

House Features

Created At: 24 February 2026
Bedrooms: 4
Bathrooms: 5
Size: 3300 ft²

Utilities

Internal features
Alarm Backup Generator En Suite Fibre Internet Service Charge Included Walk In Closet
External features
Balcony BBQ CCTV Electric Fence Borehole Garden Wheelchair Access Gated Community Swimming Pool Staff Quarters Parking Gym Kids Play Area
Nearby
Bus Stop Golf Course Hospital Scenic View School Shopping Centre

Similar Properties

Create alert

Create alert to receive the latest published ads:

4 bedroom townhouses for sale in Kitisuru, Nairobi

Alert Type

Contact details

ELIJAH MUTISYA PROPERTY CONSULTANT

Elitors Agencies

Get expert advice and popular properties in your inbox weekly.

Related Searches